
1、適應力強
  可根據工廠各工位的需要,靈活地設計安裝。從定點運送到高準確度的多點、多節拍的自動化輸送線,都能隨意組合而成。可用于新設計的廠房,也可用于系統的改造和延伸。
2、可靠性好、穩定性高
  系統的組成部件全部是標準模塊,可以保證大批量、高質量生產,因而系統十分可靠;系統模塊的主體是三種規格的冷軋型材,強度大、剛性好、自重輕,保證了系統的穩定性。
3、經濟高效  
  可以簡單地懸掛于建筑屋頂或上部結構上,起重機軌道無需額外的輔助支撐,無論是服務于車間的部分或者全部,都可以簡單可靠地安裝,成本較低。
4、安裝尺寸合理、自重輕
  起重機由KBK標準組件組成,能使您快速可靠地實現特定區域內的物料輸送以及各種部件的精確定位。
5、安全可靠  
  由于設備自重輕、運行小車操作輕便,JKBK單梁懸掛起重機可以輕松地實現手動移動,能夠快速可靠地輸送那些粗大笨重的工件。
  1.最大起重量可達:1000kg 2.最大跨度可達:6m
6、安裝方便、經濟高效
  安裝調試很方便,型材及各標準模塊之間只需用螺栓連接即可使用,可節省工廠的空間和面積,從而降低能耗,提高企業效益。系統可以手動操作,也可以實現自動、半自動操作,運行高效。

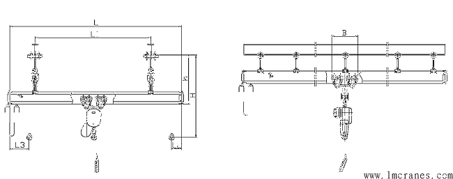
| 尺寸(mm)/起重量(kg) | 125 | 250 | 500 | 1000 | 
| L | 9000 | 8000 | 6500 | 4000 | 
| L1 | 8500 | 7500 | 6000 | 3500 | 
| L2 | 107 | 107 | 232 | 232 | 
| L3 | 487 | 437 | 512 | 412 | 
| B | 173 | 173 | 423 | 423 | 
| H | 1200 | 1220 | 1300 | 1430 | 
| h | 730 | 730 | 730 | 730 | 
 
                                 
                                 
                                 
                                 掃一掃,微信聯系咨詢
掃一掃,微信聯系咨詢			工作時間:周一至周五 9:00-18:00
聯系人:劉經理
手機:18921739103
郵件:canbo.liu@lmcranes.com
地址:江蘇省靖江市城南工業園區
